0062
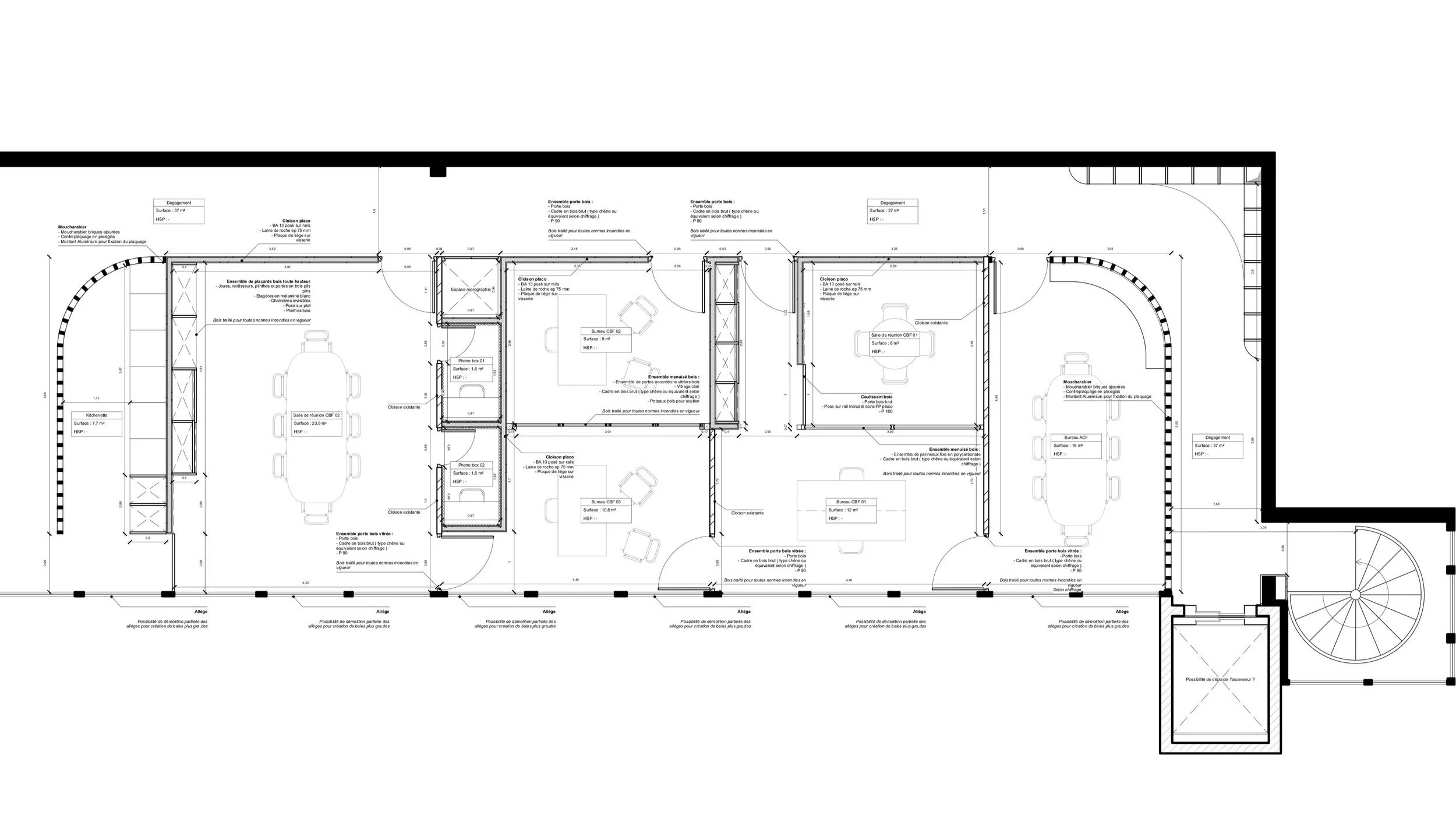
Rénovation d’un plateau de bureaux
Le Brezet ( 63 100 )
0062
Année :
Maitrise d’ouvrage :
Programme :
Superficie :
Cout :
Mission :
Statut :
2023
Privée
Rénovation d’un plateau de bureaux
140 m2
Sans objet
Conception
Abandonné

