0130
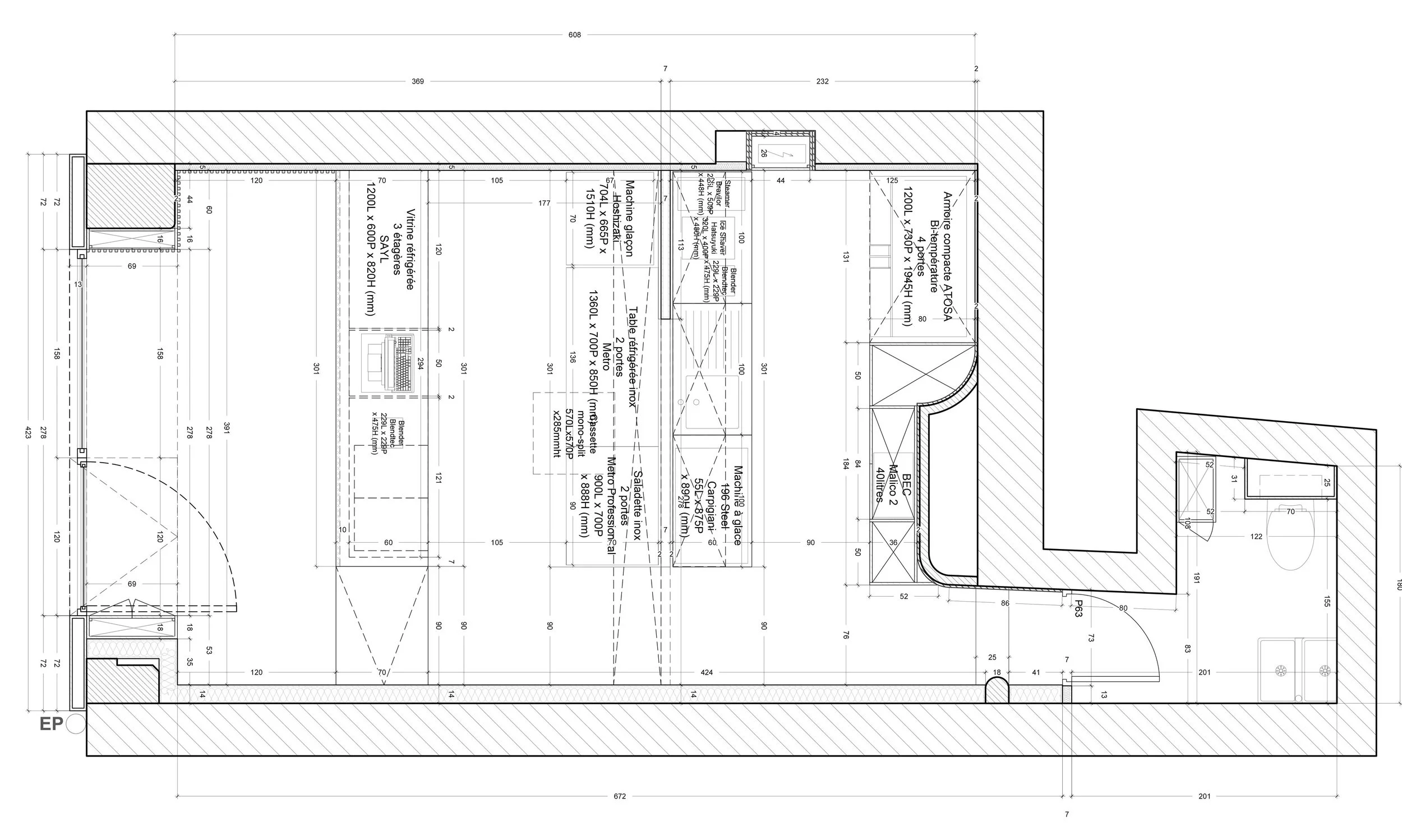
Transformation d’une ancienne pharmacie en salon de thé
Première implantation européenne de l’enseigne TSUJIRI
Rue des Petits Champs - Paris ( 75 001 )
0130
Année :
Maitrise d’ouvrage :
Programme :
Superficie :
Cout :
Mission :
Statut :
2025
Privée
Salon de thé
30 m2
Sans objet
Complète
Livré

