
0031
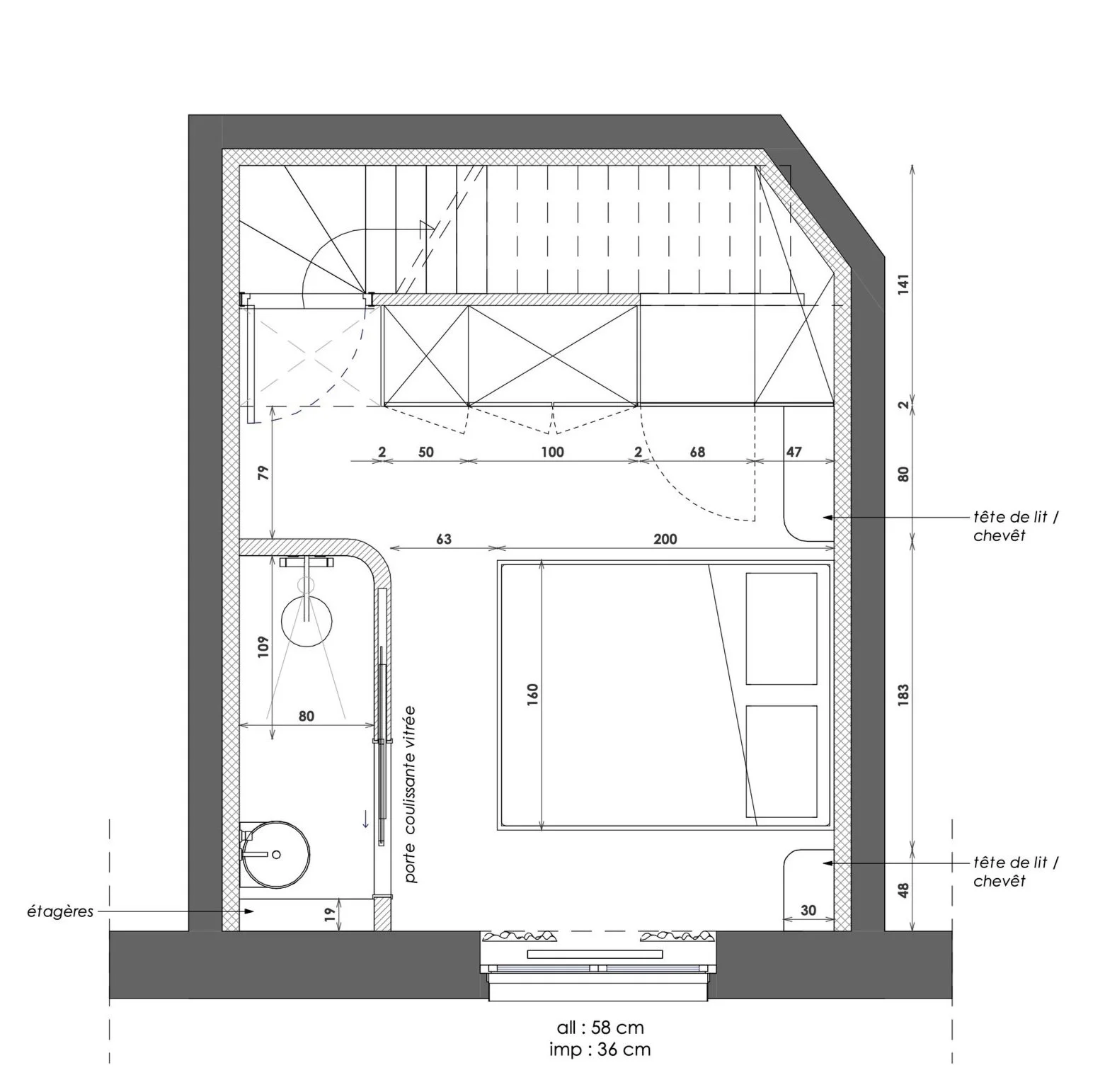
Rénovation d’un appartement
Paris ( 75 005 )
2022
Privée
Rénovation d’un appartement
20 m2
Sans objet
Complète
Réceptionné
0031
Année :
Maitrise d’ouvrage :
Programme :
Superficie :
Cout :
Mission :
Statut :
Rénovation d’un appartement
Paris ( 75 005 )
2022
Privée
Rénovation d’un appartement
20 m2
Sans objet
Complète
Réceptionné
Année :
Maitrise d’ouvrage :
Programme :
Superficie :
Cout :
Mission :
Statut :