
0046
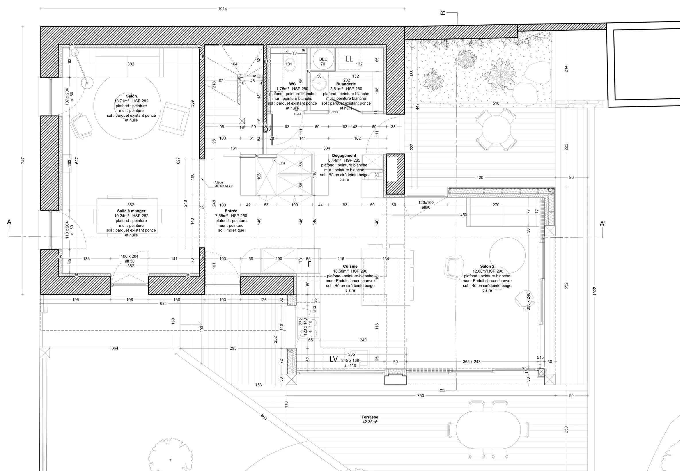
Rénovation et extension d’une maison
Clermont - Ferrand ( 63 000 )
0046
Année :
Maitrise d’ouvrage :
Programme :
Superficie :
Cout :
Mission :
Statut :
2025
Privée
Rénovation et extension d’une maison
25 m2
Sans objet
Sans objet
En chantier



Rénovation et extension d’une maison
Clermont - Ferrand ( 63 000 )
Année :
Maitrise d’ouvrage :
Programme :
Superficie :
Cout :
Mission :
Statut :
2025
Privée
Rénovation et extension d’une maison
25 m2
Sans objet
Sans objet
En chantier